Call Us
Whatsapp

Services

How we help you build your project?

The recruitment and motivation of the top experts in our principle for smooth operations and a pillar of our strategy.

Our services

  • Recognize the requirements of the client like the nature of the Project and the location of the project. Our Architect Team, who are well qualified and expertise in Contemporary Architecture, space utilization, nature ventilation, artistic designing.
  • Selecting and appointing an apt Associate Engineer from our database fits the client’s requirements. These Associate Engineers who are directly involve in projects will execute in association with MNC team of Architects, Structural Engineers and Quantity Surveyors.
  • Providing Concept design understanding of every detail shared by the client. Architect team interact and discuss with client and his/her family to get ideas, views, requirements and their sentiments before making concept designs.
  • Draw and provide perspective view, 3d Views and walkthrough on request. MNC very much pleased to provide any number of perspective views and walk-through to visualization for the finished building by the client at a small fee.
  • Advise on budget -friendly solution and cost of required materials. Our Regional Managers are here to provide the best cost effective budgets and quality and quantity of materials to client to minimise the waste of material and money.
  • Advise on obtaining relevant permits and licensing from statuary authorities. MNC will provide assistance to clients in getting approvals from various Government Agencies without any hassle.
  • Close monitoring of incurrent expenses. All the project cost will be monitored digitally with an exclusive portal by our Regional Manager and Quantity Surveyor in our website and Client can enter in the portal.
  • Keep track of the progress of the project with proper step by step reporting. MNC has a unique and separate reporting system to monitor progress of each project and the stakeholders of the project can enter and review the progress in our portal.
  • A thorough check on the quality of materials and workmanship by regular inspection. Strength of a structure depends upon the quality of material used and method of construction and good workmanship. All these things are taken into account carefully and monitored by our team by regular site inspection and reported in a separate portal of our website.
  • Guiding in the selection of superior materials. MNC is always concern about budget of a project. It provides assistance in selection of superior quality materials without affecting the budget and to the entire requirement and satisfaction of the client.
  • Excellent backend support resolving concerns between associate engineer and the client. In the construction field, difference of opinion between Client and Builder is inevitable. MNC has witnessed so many cases and resolves the issues amicably.

Ensuring that the best practices we've learned from ongoing projects contribute to the satisfaction of our client’s present and future demands.

image

Best Renovation Works and Consulting

At Best Renovation Works and Consulting, we specialize in transforming spaces through expert renovation solutions and strategic consulting. Whether it's residential, commercial, or industrial, our team of skilled professionals ensures that every project reflects your vision while meeting modern standards of design and functionality. From structural improvements to aesthetic upgrades, we guide you through every phase—offering detailed planning, material selection, and 3D previews. With a focus on quality, efficiency, and customer satisfaction, we turn your renovation ideas into lasting results. /p>

image

Building Contractor Work's

At Building Contractor Work's, we provide end-to-end construction solutions backed by years of industry experience and technical expertise. From foundation to finish, our skilled team manages every phase of the building process with precision and commitment to quality. We work closely with clients, architects, and engineers to deliver residential, commercial, and industrial projects that meet timelines, budgets, and safety standards. Whether it's new construction, remodeling, or structural upgrades, we ensure that every detail is executed to perfection for long-lasting results.

image

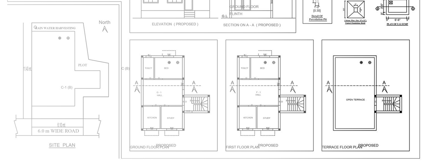
LPA Layout Drawing

Our LPA Layout Drawing services are tailored to meet the specific requirements set by the Local Planning Authority (LPA), ensuring seamless approval and compliance with zoning regulations. We create precise, detailed, and regulation-ready layout plans that include road alignments, plot demarcations, open spaces, and infrastructure provisions. Whether for residential, commercial, or mixed-use developments, our expert team collaborates with clients to deliver drawings that align with both their vision and the authority’s standards, paving the way for hassle-free project execution.

image

Total Station-Works

Our experienced surveyors ensure that every measurement meets industry standards, enabling efficient project planning, reduced errors, and cost-effective execution. Whether for residential layouts, commercial buildings, or civil infrastructure, we offer reliable and timely surveying services tailored to your project’s needs

image

Blue Print and Estimations

We deliver detailed architectural and structural blueprints that clearly outline every aspect of your project—from floor plans and elevations to electrical and plumbing layouts. Alongside, our precise cost estimations help you understand the budget requirements, material needs, and labor costs involved. Whether you're building from the ground up or renovating an existing structure, our expert team ensures accuracy, transparency, and efficiency at every stage of planning.

image

Vastu Plan

Our Vastu Plan services combine traditional wisdom with modern architectural principles to create spaces that promote harmony, health, and prosperity. Guided by the ancient science of Vastu Shastra, we design floor plans that align with natural elements and directional energy flow, ensuring a balanced and positive environment. Whether it’s for a home, office, or commercial space, our experts provide customized Vastu-compliant layouts that support your goals while maintaining practical functionality and aesthetic appeal.

image

3D Elevation

Our 3D Elevation services bring your architectural vision to life with realistic, high-quality visualizations of your building’s exterior. Whether it's a residential home, commercial space, or multi-storey structure, we create detailed 3D models that showcase textures, colors, materials, lighting, and design elements from multiple angles. These visuals not only help you understand the final look before construction begins but also aid in making informed design decisions. With our creative and technically sound team, we ensure your project stands out with a striking and functional façade.

image

EDCR Municipality, Town Panchayat Village Panchayat Online Drawing

From plot layout and building plans to elevation and section views, each drawing is crafted with precision using approved formats and software.

image

PEP and Steel structure

In the context of construction, PEP refers to Pre-Engineered Building (PEB), which is a type of building system that uses prefabricated steel components for faster and efficient construction. These components are typically made from steel and include elements like columns, beams, purlins, and roof/wall cladding. PEB structures are widely used in various applications, including industrial, commercial, agricultural, and residential buildings.

image

DTCP APPROVALS

DTCP approval is a mandatory legal certification provided by the Directorate of Town and Country Planning (DTCP), a state government body in India responsible for regulating land use and planned development in urban and rural areas. This approval ensures that a proposed land layout or building plan complies with the state's zoning laws, building codes, and infrastructure standards

image

DGPS

A DGPS survey uses the Differential Global Positioning System (DGPS) to provide highly accurate location data, improving upon standard GPS accuracy (which can be off by several meters) to a precision of a few centimeters. This technology is essential for applications requiring pinpoint accuracy, such as land surveying, construction, infrastructure development, and precision agriculture

image

Interior and Exterior Work

Interior Works

Interior work involves designing, planning, and executing the inside of buildings to make spaces functional, safe, and aesthetically pleasing, covering everything from structural changes like walls and electricals (civil interiors) to selecting finishes, furniture, lighting, and decor (design/decoration) for homes, offices, or commercial spaces.

Exterior Works

Exterior works refer to all construction, landscaping, and site development activities happening outside the main building footprint, focusing on the surrounding environment for function, safety, and aesthetics, including roads, paths, drainage, boundary walls, fencing, and soft landscaping like lawns and planting.

image

All Kind Of Cadd Drawing Works

CAD drawing work for building construction covers a wide range, from initial concepts to detailed execution, including Architectural (Floor Plans, Elevations, Sections), Structural (Framing, Foundation), MEP (Mechanical, Electrical, Plumbing, HVAC), Site (Plans, Grading), Finishing (Schedules, Details), and Specialty (Firefighting, Landscape) drawings, all essential for design, approval, and construction using software like AutoCAD or Revit